- ホーム
- › 震度7に耐える木造住宅間取りプラン
- › 建物面積40坪プランの詳細
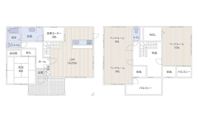
- › 40坪Dプラン


建物面積:135.68m2(約41.04坪)
建物価格:19,495,520円(税込)
橿原市四条町
プレジデンス四条町

葛城市辨之庄
プレジデンス辨之庄Ⅲ期

奈良県葛城市南道穗
プレジデンス南道穂第Ⅱ期

葛城市南道穗
プレジデンス南道穂Ⅰ期

葛城市辨之庄
プレジデンス辨之庄Ⅱ期

葛城市今在家
プレジデンス今在家

大和高田市春日町1丁目
グランステージ春日町

奈良県葛城市八川
グランステージ八川

![]()
Copyright (c) 耐震住宅.com 関西 All Rights Reserved.



リビング内の階段を見上げると吹き抜けがあり、ただでさえ明るいリビングが更に明るく開放的です。キッチン横には奥様に嬉しい3帖の家事コーナーを設け、キッチンから浴室へのスムーズな家事動線を確保しました。また、洋室16帖を続き間でとり、お子様の成長に合わせて間仕切りなどしてみてはいかがでしょうか?